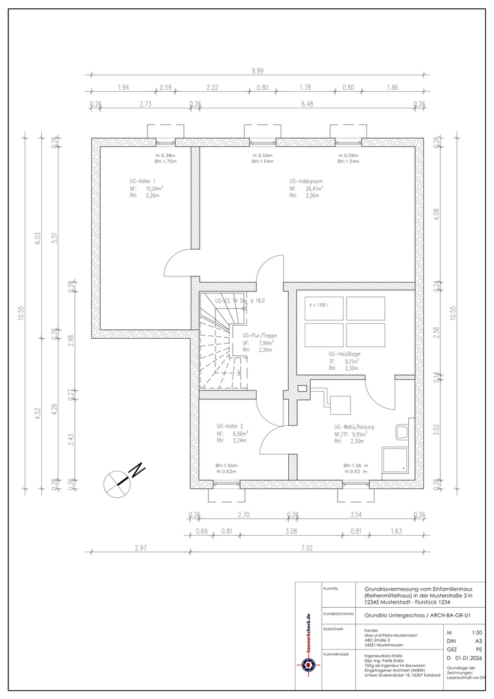
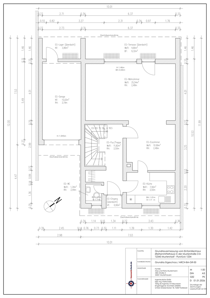
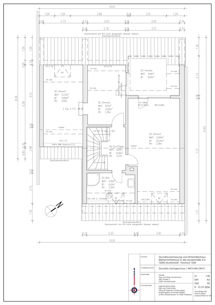
Grundrissaufmaß und Flächenberechnung

Bestandsimmobilien haben oft keine aktuellen Grundrisspläne oder eine aktuelle Flächenberechnung dazu. Diese benötigen Sie, wenn Sie z.B. eine Immobilie verkaufen oder vermieten möchten. Kreditgebende Banken verlangen bei zu alten und zu unleserlichen Plänen, ein aktuelles Aufmaß (aktuelle Grundrissvermessung) und die dazu gehörige Flächenberechnung, ermittelt nach der Wohnflächenverordnung (WoFlV) für Wohnräume und nach DIN277 für Nutz-, Verkehrs- und Technikflächen der übrigen Räume. Auch im Falle einer Vermietung, sollten korrekte Flächenangaben im Mietvertrag angegeben werden, da sonst Regressansprüche entstehen können.

Gerne vermessen wir Ihre Wohnung / Immobilie mittels 3D-Laser-Aufmaß vor Ort und erstellen hierzu die Grundrisspläne mit der dazugehörigen Flächenberechnung im Büro.
Ohne ein korrektes Aufmaß vor Ort, ist auch keine korrekte Flächenberechnung möglich. Z.B. müssen vor Ort bei Dachschrägen in jedem Raum die Höhenlinien (0,5 m / 1,0 m und 2,0 m) mit vermessen werden, damit dann die Wohnflächen korrekt berechnet werden können. So zählen in der Wohnflächenberechnung z.B. Raumbereiche mit einer Höhe unter 1,0 m, nicht in die Berechnung der Wohnfläche dazu und Raumbereiche zwischen 1,0 m und 2,0 m Höhe, werden nur zu 50 % anteilig berücksichtigt.
***
Kosten für Aufmaß, CAD-Zeichnungen und Flächenberechnung

ab 3,50 € Netto / m²
(vermessene Raum-Bodenfläche)
Handelt es sich um weitestgehend rechtwinklige Immobilienobjekte, welches meist bei Nachkriegsbauten der Fall ist, so können wir Ihre Immobilie für 3,50 € Netto / m² (vermessene Raum-Bodenfläche), vermessen bzw. die dazugehörigen Unterlagen (Grundrisspläne und Flächenberechnung) erstellen. Die vermessene Bodenfläche wird in der Flächenberechnung exakt ausgewiesen, so dass damit die Abrechnungsgrundlage gleich gegeben ist.
Bei Altbauten mit Schrägen Wänden im Grundriss oder zu unregelmäßigen Wandverläufen, erstellen wir Ihnen gerne auf Grundlage einer Vor-Ort-Besichtigung ein individuelles Angebot, da hier der Aufwand je nach Situation, höher ausfällt.




